• Panel involves components which are assembled onsite to create enclosures, partitions or surfaces. Panel assemblies can be set within either conventional structural systems or inside volumetric enclosures. Panel is the current "go to" means for developers delivering solutions at smaller scale for multifamily, commercial and hopitality.
It relevance arises from use in wider and shallower enclosures which are fenestrated along their length, as a detached American suburban house. As a result, Panel as a system delivers less stiffness than Volumetric and therefore is more suitable to lowrise construction, either wood or cold rolled steel.
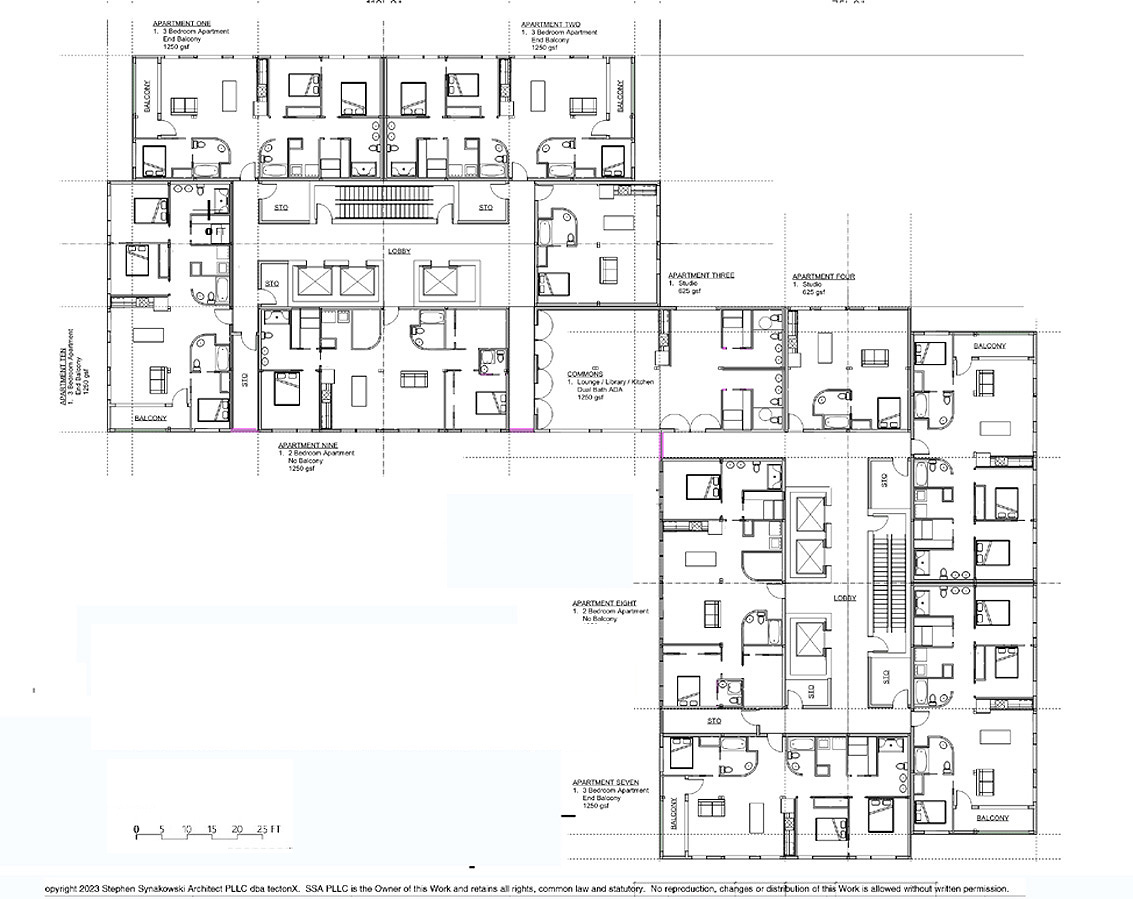
All panel designs premised, incl.braced core, corridor, townhome flats, and house, based on a standard 1250 gsf 3 bed residential house plan. All units demisable from full 3br to 1/2 br to studio to micro units, for all scales of assembly.
Engineered Steel Panel w/ Cold Formed Steel. Economic Low and Midrise MultiFamily, to 12 Stories. Concrete Block or Steel Framed Elevator/Stair Core.
One, Two, Three Bed; 6,000 net sf living area per floor plate with up to 5 1,200 sf Three Bedroom Units per Floor, or Various Combinations of One & Two Bedrooms per Floor.
Multifamily, Hospitality, Dormitories
|
Lowrise Braced Residential Blocks Joined. Delivers Optimal Fireprotection for Scale.
|
Standard Basic Volume of 6,000 gsf Gross Livable per Floor Plate Extended up to 10-12 Stories. Parking or Commercial at Grade. Both Sturcture and Height Readily conforms with NYC Zoning Standard re 6 Story Building Height Limits. td>
|
 |
 |
|
|
 |
 |
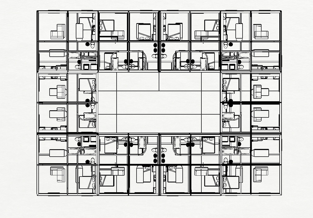
Twinned Low or Midrise Blocks. Allows Shared Commons for Senior Residential Living or Dormitories.
|
Various Flexible Unit Planning Options, with up to 17' Transverse Spans. All Units with Custom Kitchen and Bathroom Pods.
 |
 |
|
|
 |
 |
I__Engineered Cold Form Steel Panel Design_
Lowrise Braced Core _To 12 Stories; Cold Steel, To 5 Stories w/ Engineered Wood. Hospitality, Dormitories, Multifamily.
|
Lowrise Volumetric_ Braced Core Prefab Modular. Senior MultiFamily with Dedicated Parking, Buffalo Grove IL 2023 . w/ Eisen Steel. Based on Domestic Residential 1250 gsf du Plan.
|
II__Engineered Panel Design _
Lowrise Corridor Arranged_Gated Community. To 8 Stories; Cold Steel, To 5 Stories Engineered Wood. Hospitality, Dormitories, Multifamily.
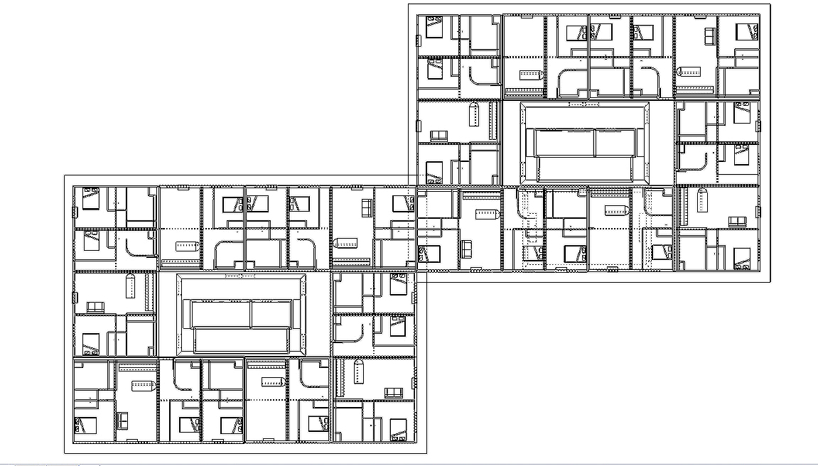
Lowrise Volumetric_Corridor Arranged_Prefab Modular Senior Gated Community Arlington Heights IL 2023. Modelled on Self Storage Planning and Design
|
III__Engineered Panel Design_
Urban Design_Lowrise Braced Core_Urban Design_To 6 Stories, NYC
Lowrise Modular Prefab Bay Ridge, Brooklyn NYC:
4-6 Story Braced Core_Attached or Free Standing Blocks w/ Parking
|
IV__Engineered Panel Design_
Suburban Detached_Walkups + Single Family_SIPs, Cold Rolled Steel
|
V__Engineered Panel Design_ Enclosure Modules / Lengthwise Oriented Fenestration_Micro, Studio, 1 Bed, 2 Bed_ House or Apartments
Professional Focus
Projects shown represent 6 areas of Professional Focus: Prefab (Volumetric, Panels, Steel Structural), Building Repurposing; HyperScale incl. Corporate Scale Projects w/ Large Budgets; Residential Interior Design; Professional Tools, Global Comparative Models.
Residential Lowrise | Midrise, New York
Residential PUD, Brooklyn, NY
Industial Building, HRYV, Bronx, NY
Archer Canal Lofts, Chicago
Senior Modular Communities, Buffalo Grove, IL
Stagger Truss Highrise, New York
Micro Housing to 6 Stories | Chicago, New York
Contempoary_Traditional_Loft | Chicago, New York
AIM Urban Landscape Park | Beijing, China
Testimonials
“I have been in contact with Steve continuously since that time and have found him to be a most competent, ethical and talented architect.“
— Thomas D. Fromm AIA, ACHA
Health + Science Practice Leader
Skidmore Owings Merrill LLP, Chicago, IL
— From reference/recommendation letter to
NYS Department of Education
Re NYS Architectural License Application
“to describe Steve in few words is to say he is a Solution Architect. His knowledge and ability to resolve issues are exemplary. Great leadership skill and ability to drive the project to successful conclusion is one of is many talents.
Steve is a team player and a great pleasure to work with “
—Margarita Ambramov
Business Analyst New York City Housing Authority, currently;
Chief Compliance + Procurement Officer for IBTS, 2014-19
—Re Position as Managing Senior Architect, New York City Office for IBTS, incl. Engineering + Environmental Program Manager,
Institute for Building Technology and Safety, Sterling VA
|