DFM _ DESIGN for MANUFACTURE _

Prefab Design Guide_
Design Opportunities in Prefab (Panel) and Modular (Volumetric) MultiFamily in the current DFM Marketplace

• Panel involves components which are assembled onsite to create enclosures, partitions or surfaces. Panel assemblies can be set within either conventional structural systems or inside volumetric enclosures. Panel is the current "go to" means for developers delivering solutions at smaller scale for multifamily, commercial and hopitality.

It relevance arises from use in wider and shallower enclosures which are fenestrated along their length, as a detached American suburban house. As a result, Panel as a system delivers less stiffness than Volumetric and therefore is more suitable to lowrise construction, either wood or cold rolled steel.

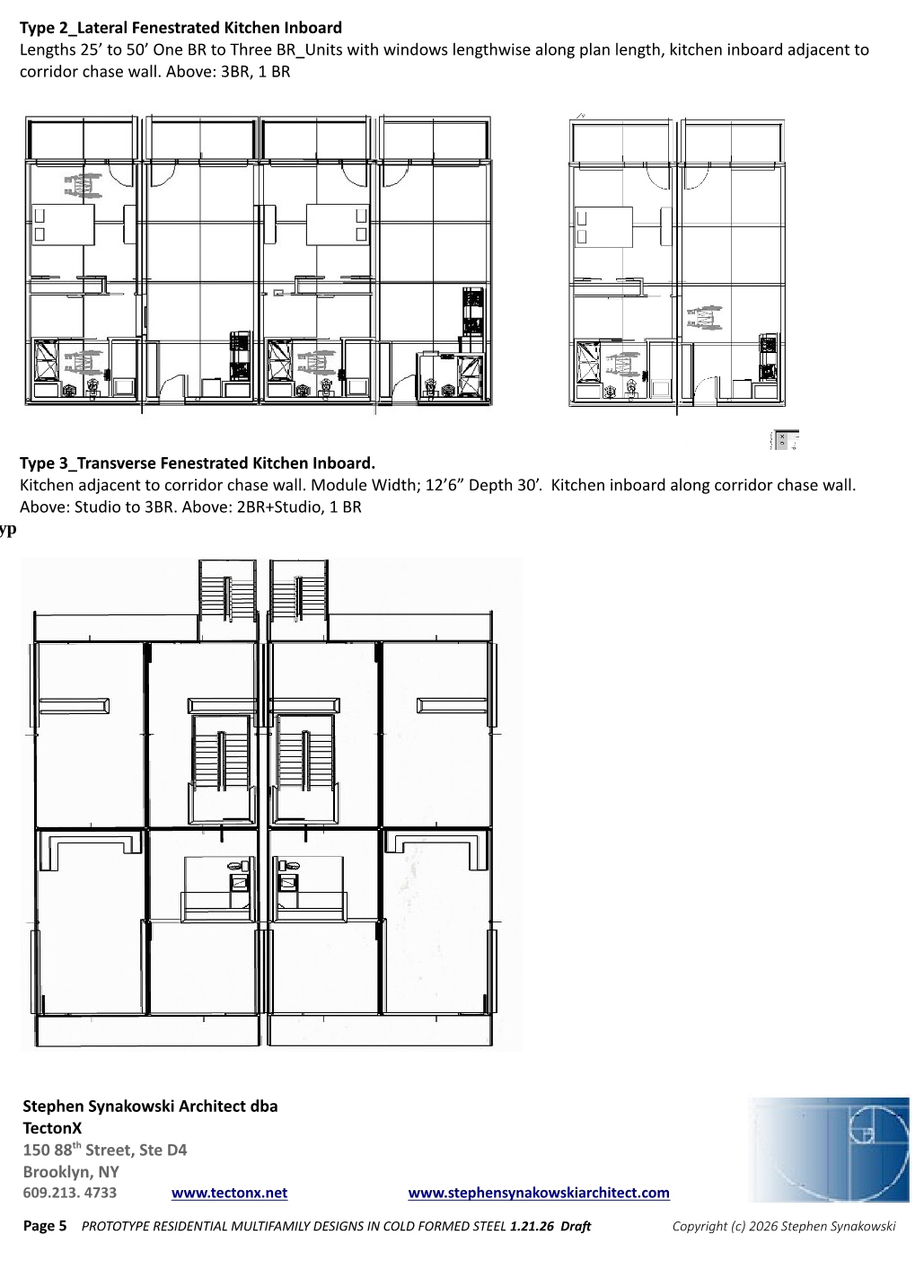
All panel designs premised, incl.braced core, corridor, townhome flats, and house, based on a standard 1250 gsf 3 bed residential house plan. All units demisable from full 3br to 1/2 br to studio to micro units, for all scales of assembly.

• Volumetric involves enclosures which can operate as structural systems, extending up to 40 stories using steel framing inside the volumetric units, and up to 5 stories with wood framing inside the volumetric units.

Both are capable of delivering solutions at scale for multifamily, commercial and hospitality.

The design of Volumetric emanates takes as its basis longer and deeper enclosures having fenestration at the end transverse to the axis of the volume. As a result it has maximal stiffness for the enclosed volume and can go high as mid rise assembly, assuming tolerances can be controlled. QAQC both in the factory and in the field is a central consideration in this delivery model.


















































































Panel Systems Incorporated_COLD FORMED STEEL PANEL SYSTEM DELIVERY

  • Panel Systems Incorporated_Fabricator Web Site


  • Professional Focus

    Projects shown represent 6 areas of Professional Focus:
    Prefab (Volumetric, Panels, Steel Structural), Building Repurposing; HyperScale incl. Corporate Scale Projects w/ Large Budgets; Residential Interior Design; Professional Tools, Global Comparative Models.

    News

    More News

    Testimonials

    “I have been in contact with Steve continuously since that time and have found him to be a most competent, ethical and talented architect.“

    — Thomas D. Fromm AIA, ACHA Health + Science Practice Leader Skidmore Owings Merrill LLP, Chicago, IL

    — From reference/recommendation letter to NYS Department of Education Re NYS Architectural License Application

    “to describe Steve in few words is to say he is a Solution Architect. His knowledge and ability to resolve issues are exemplary. Great leadership skill and ability to drive the project to successful conclusion is one of is many talents. Steve is a team player and a great pleasure to work with “

    —Margarita Ambramov Business Analyst New York City Housing Authority, currently; Chief Compliance + Procurement Officer for IBTS, 2014-19

    —Re Position as Managing Senior Architect, New York City Office for IBTS, incl. Engineering + Environmental Program Manager, Institute for Building Technology and Safety, Sterling VA

    Architecture

    Recent + Upcoming News.

    Learn more

    Planning

    Recent + Upcoming News.

    Learn more

    Engineering

    Recent + Upcoming News.

    Learn more