Engineered Architectural Design_

Sustainable Energy


Tabs below show specific engineered solutions reflecting new directions in architectural and building engineering which are structural and energy related.

Steel has relevance in superstructure vertical additions, bridges and additions spanning over buildings and features at grade. It also has untapped potential to go high. It offers new ideas for high density urban when paired with either volumetric offsite enclosures and with offsite panels (incl.curtain wall);

Concrete has relevance to high density vertical solutions in urban settings where long span is required, eg LiftSlab, SpeedCore, etc.;

Energy including generation, conservation and distribution technologies;

Shoreline Engineering has relevance to community planning and development. Skills exemplied include program management of traditional residential and commercial construction, technical footing and foundation design including geotechnical, per FEMA, and design and management of shoreline buildings and improvements per NYS Environmental.

Steel Design

Learn more

Longspan Concrete

Learn more

Energy

Learn more

Shoreline Engineering

Learn more

Built + Designed

Learn more


            
            




I_Energy_Generation_Distribution_
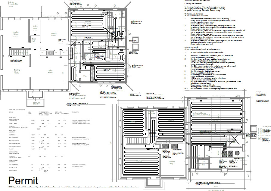
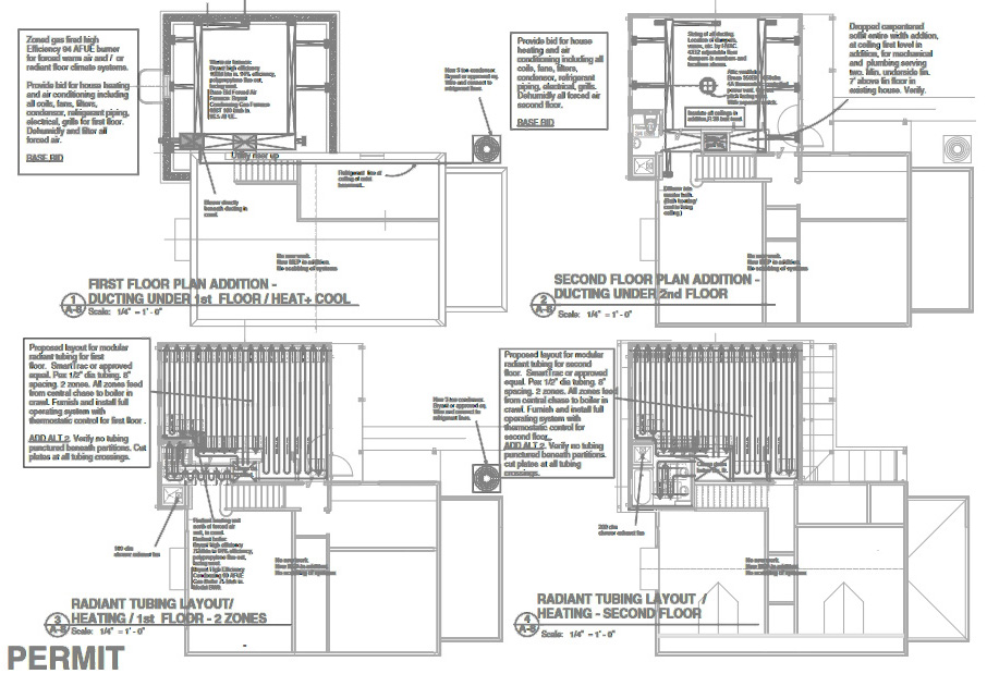
Zoned Geothermal Heating + Cooling_Residential_Vertical + Lateral Tubing



            


II_Energy_Conservation_Distribution_
Insulated Modular Panels_Convection Heating + Cooling, Standard Minimum Dwelling





            

III_Energy_Generation_Distribution_
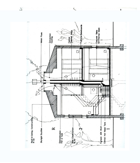
Trombe Solar_Building Heating_Residential



News

More News

Testimonials

“I have been in contact with Steve continuously since that time and have found him to be a most competent, ethical and talented architect.“

— Thomas D. Fromm AIA, ACHA Health + Science Practice Leader Skidmore Owings Merrill LLP, Chicago, IL

— From reference/recommendation letter to NYS Department of Education Re NYS Architectural License Application

“to describe Steve in few words is to say he is a Solution Architect. His knowledge and ability to resolve issues are exemplary. Great leadership skill and ability to drive the project to successful conclusion is one of is many talents. Steve is a team player and a great pleasure to work with “

—Margarita Ambramov Business Analyst New York City Housing Authority, currently; Chief Compliance + Procurement Officer for IBTS, 2014-19

—Re Position as Managing Senior Architect, New York City Office for IBTS, incl. Engineering + Environmental Program Manager, Institute for Building Technology and Safety, Sterling VA

Architecture

Recent + Upcoming News.

Learn more

Planning

Recent + Upcoming News.

Learn more

Engineering

Recent + Upcoming News.

Learn more